top of page
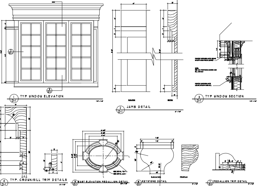
INTERIOR DETAILS
SPECTACULAR SPECIFICATIONS
You might think that our outstanding service extends only to architectural design and technical specification, but our team has many years of experience in designing and coordinating sublime interiors. The wealth of our technical experience and knowledge enables us to produce precise detailing, ensuring superior design implementation.



1/2
CLICK IMAGE TO ENLARGE
bottom of page
